Eastern Lycoming YMCA plans to add more child-care space
An artist’s rendering the proposed expansion of the Eastern Lycoming YMCA.
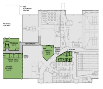
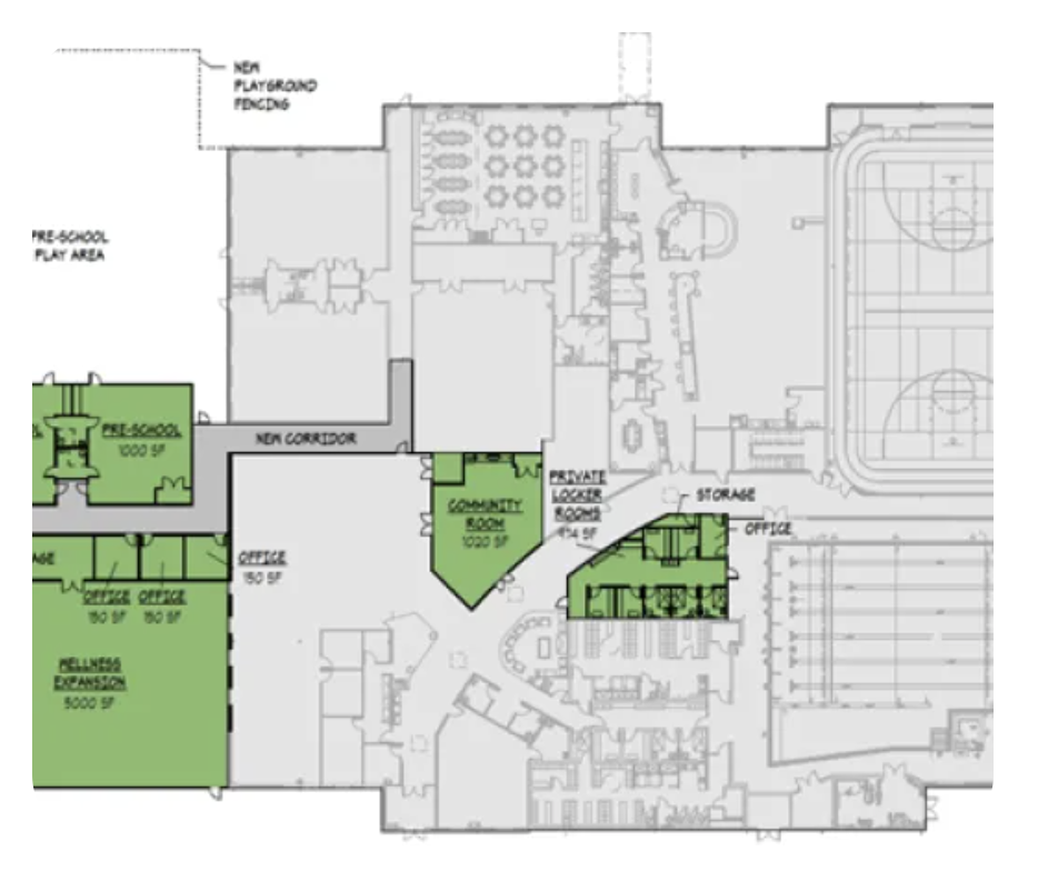
The Eastern Lycoming YMCA is launching a capital campaign for an expansion that includes an additional 2,000 square feet of childcare space, more training style equipment and a group exercise room.
“The Eastern Lycoming Branch YMCA is expanding our facility to better serve more children, families, and seniors within our local community,” a news release on the organization’s website said. “The YMCA is dedicated to offering programs and services that nurture every individual we serve — strengthening our community today and building a foundation for generations to come.”
In 2024, 180 children were given the skills and values needed to successfully transition into Kindergarten through the Y’s preschool program, 40 people with diverse abilities participated in a movement class, now in its 16th year, to develop motor skills, coordination, and strength, 51 survivors improved their strength and physical fitness to lessen the harshness of therapy side effects and 228 other individuals served through Community Outreach Initiatives.
The news release notes 2,300 members were able to “lead healthier lifestyles, socialize with new friends, and become part of the Eastern Lycoming Branch YMCA.”
“There is also the possibility of two additional phases to this project in the future which include additional restrooms, a covered patio area, and another basketball court to meet the need for additional sports leagues and member programming,” the news release said.





